Радиоизотопный преобразователь РП-25 (ИНДИКАТОР УРОВНЯ)
Радиоизотопный преобразователь РП-25 (ИНДИКАТОР УРОВНЯ)
Радиоизотопный преобразователь «РП-25» (далее прибор) предназначен для бесконтактного контроля уровня нерадиоактивных жидких и сыпучих сред.
Область применения
Металлургическая, химическая, нефтегазовая, угольная, горнорудная, строительная, легкая, пищевая, целлюлозно-бумажная и другие отрасли.
Принцип действия
Измерение величины интенсивности гамма - излучения при прохождении через потоки материалов различной плотности (или отражения от них).
Достоинства и преимущества
Степень защиты блока детектирования IP67, блока обработки информации – IP63 или IP65;
Современная элементная база, выполненная по технологии SMD;
Автоматическая стабилизация параметров блока детектирования;
Термостабилизация блока детектирования;
Унифицированная конструкция и габариты;
Высокая чувствительность блока детектирования (сцинтилляционный детектор);
Передача выходных сигналов блока детектирования по линии питания 12 В;
Микропроцессорный блок обработки информации;
Отсутствие регулировочных элементов, простота настройки и удобство в эксплуатации;
Большой символьно-цифровой дисплей с подсветкой, удобная индикация параметров;
Наличие двух реле, возможность контроля продукта по min и max значению плотности;
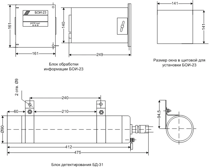
Любой блок детектирования БД-31 подходит к любому блоку обработки информации БОИ-23.












